
Dictámenes UVIE
Nosotros te proporcionamos el documento que certifica que tu instalación eléctrica cumple con la norma NOM-001-SEDE-2012 Instalaciones Eléctricas (Utilización)..
Código de Red 2.0
Te ofrecemos asesoría especializada para garantizar que tu instalación eléctrica cumpla con los requerimientos técnicos establecidos en el Código de Red 2.0.
Realizamos pruebas eléctricas que evalúan el funcionamiento, la seguridad y la integridad de tus equipos eléctricos. Nuestro objetivo es identificar posibles defectos y fallas.
Pruebas a Equipos Eléctricos
Ofrecemos soluciones especializadas en ingeniería eléctrica para garantizar la seguridad, eficiencia y cumplimiento normativo de tus instalaciones. Nuestro equipo de expertos está comprometido con brindar servicios de calidad, adaptados a las necesidades de cada cliente.
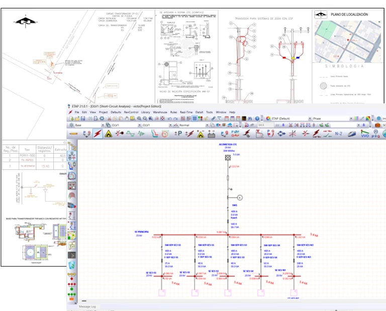
Desarrollo de Ingeniería Eléctrica
Te ayudamos a diseñar e implementar los proyectos ejecutivos que describen las características de diseño, instalación y funcionamiento de tu sistema eléctrico.
Sistemas de Puesta a Tierra
Diseñamos sistemas de puesta a tierra que garantizan la seguridad de las personas, animales y equipos eléctricos. Medimos y Comprobamos el diseño mediante las mediciones del sistema de tierras.
Obras en baja y media tensión
Construimos obras de media tensión para el suministro de energía eléctrica por medio de transformador y su acometida.
Dictámenes UVIE
Inspeccionamos y evaluamos el cumplimiento de la conformidad de las instalaciones eléctricas de los servicios eléctricos, de acuerdo al Procedimiento de Evaluación de la Conformidad de la NOM-001-SEDE-2012 (Utilización) - Instalaciones Eléctricas.















